首页
Home
建筑设计
Architectural
建筑工程甲级,国际知名的建筑设计公司,深耕建筑设计行业多年,业务范围覆盖居住建筑、商业建筑、工业建筑、公共建筑、文体建筑、古建遗产、改造建筑、装配建筑等众多领域,以卓越的成本控制能力和优质的原创设计能力深受业主好评,经典案例遍布全国。
居住建筑
Residential
工业建筑
Industrial
公共建筑
Public
古建遗产
Ancient
文体建筑
Style
改造建筑
Renovati
BIM设计
BIM
装配式建筑
Prefabricated
规划设计
Planning
专注规划设计13年,重视城市空间和地域文化对具体项目的要求,提供一站式规划设计服务。通过领先的技术、完善的管理和优良的服务为业主交付优质的规划方案。以科学合理的规划设计,达到经济合理,人与环境和谐共存的目的。
文旅规划
Travel
建筑规划
Architectural
景观规划
Landscape
园林景观
Landscapes
作为资深园林景观设计公司,专注高端别墅庭院景观设计和园林景观工程,一站式提供园林设计、景观设计、旅游景区规划设计、风景园林设计、特色小镇规划设计等设计方案,用我们的设计为您创造价值。
居住环境
Livin
文旅酒店
Tourist Hotel
市政公园
Municipal Park
商业景观
Commercial
美丽乡村
Beautiful Country
室内装饰
Interior
大宸室内装饰致力于办公空间、居住空间、商业零售空间、会所和售楼处等高端室内空间的营造,凭借其独特的创意设计能力、技术落地能力、项目管理能力、成本控制能力以及服务响应能力赢得了业界的一致认可和信任。
公共空间
Public space
酒店会所
Hotel Club
商业餐厅
Dining room
家居公寓
Home apartment
工程管理
Administration
工程管理领域由设计及工程管理均经验丰富的高级工程师、注册工程师组成的精英团队主导,提供全过程工程咨询、工程监理、造价咨询、项目管理、项目代建、项目运营等精细化管理服务。
工程管理
Administration
大宸世界
About Us
大宸设计团队技术实力雄厚,配置有众多博士、硕士、一级注册工程师、高级工程师、工程师等专家。秉承“设计创造价值”的理念,运用综合性的全系列专业技术力量,全心全意为客户提供设计策划、方案设计、工程设计、专项设计、设计优化、设计顾问等系列化服务。
公司介绍
Introduction
大宸文化
Culture
资质荣誉
Honor
合作伙伴
Partner
核心团队
Team
分支机构
Branch
工程总包
Engineering
大宸集采
Engineering
联系我们
Contact Us
以大为方,以宸为仰。大宸所在,祈愿让安居的信念飞入寻常百姓家,让更多优秀的普世的建筑便民利民,让一座城、一个镇、一条村、一个家,变得更美丽、更美好、更幸福,是大宸二字的起源,也是大宸设计多年来精诚守护的价值金石。
大宸动态
Dynamic
行业新闻
Industry News
项目动态
Project
联系方式
Contact
加入大宸
Join
Architectural
建筑设计
居住建筑
Residential
工业建筑
Industrial
公共建筑
Public
古建遗产
Ancient
文体建筑
Style
改造建筑
Renovati
BIM设计
BIM
装配式建筑
Prefabricated
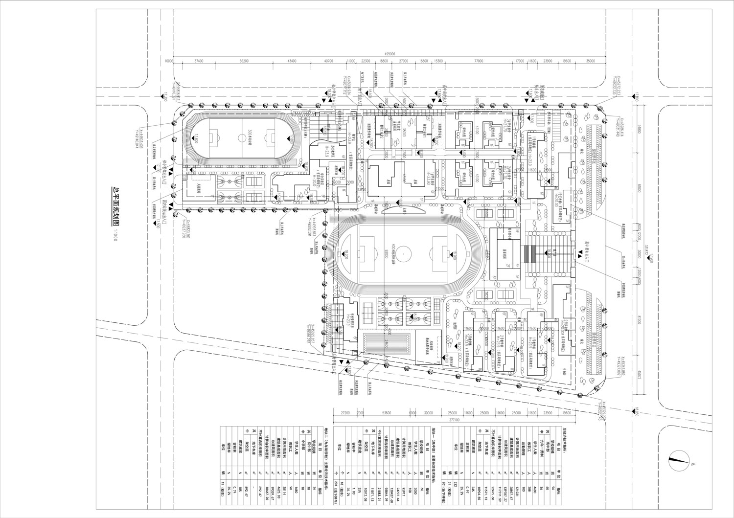
万博实验学校
项目概况
设计单位:
广东大宸建筑设计有限公司
建设单位:
惠州万博教育投资有限公司
项目地点:
广东省惠州市
项目规模:
本项目总建筑面积150000㎡.
万博实验学校
返回顶部